Construction Drawing
Construction and detailed planning
– BIM Modeling
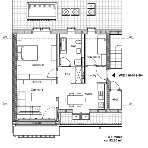
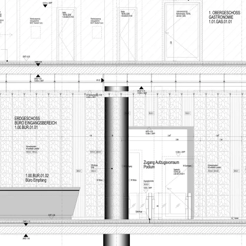
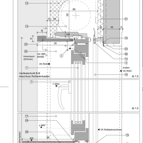
– Architectural Drawings (HOAI LPH 1-5)
Visualization
Visualizinng your ideas in top quality & short time
– Layout & Presentation
– 3D Modeling
– Rendering & Animation
Trace & Measure
Capturing the old & making them new
– Paper to CAD
– Measuring & 3D-Scanning
– Point Cloud to 3D/2D
– Building Simulation BIM
– Area & Vol. Calculation
Design & Research
Designing your projects from beginning to end
– Competition
– Moodboards & Materials
– Wayfinding Systems
– Interior Architecture
– Furniture Design
– New Buildings
– Public Spaces
– Building Restoration
We are Brilhaus
We are a dynamic, diverse and multidisciplinary team of architects and designers sharing the goal of new wave architectural thinking; Our team prepares architectural projects for architects and construction companies letting them saving time, focus and energy.
We think digital and agile.
Our Projects
Why work with us
Top Quality
Your satisfaction is our most important goal. We deliver top quality services to your highest standards
Flexibility & Scalability
We adapt to your project requirements. Project size and speed are no problem for us.
Save Time
We put ourselves in your shoes so you can save time for other projects.
How we work
PROJECT AGREEMENT:
You provide us a Short introduction of project with desired results, timeline etc. We will contact you with our proposal. If everything fits, we’re good to go, if not, we’ll adapt the offer.
01
KICK-OFF:
A meeting for organisational matters and in-depth briefing, agreeing on the final timeline, assuring all relevant documents are in place, etc.
02
SAMPLE DELIVERY:
We will deliver a first sample as quickly as possible for quality check
03
FEEDBACK & REFINEMENT:
You give us feedback. We reflect and refine the delivery based on it.
04
FINAL DELIVERY:
We deliver the final product, always considering extra rounds of refinement until your utmost satisfaction.
05
Our Values
Remote & Digital
Through online meetings and digital data storage we are always digitally available. We use tools like Miro , Slack & Trello to work efficient and quick and adapt to your needs.
Easy Communication
We put a lot of emphasis on communication and exchange in the various phases of the project.
That's why we assure you of a easy and direct communication with a single contact person.
Think Long-Term

















